Mieszkanie na sprzedaż

Łódź, Bałuty, Radogoszcz

3 pokoje
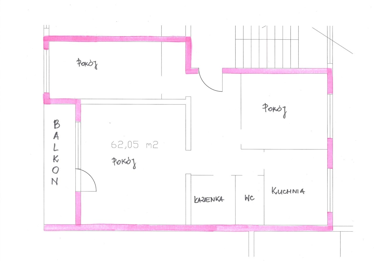
62.05 m²
5 995,17 zł/m2
4 piętro
EXP-MS-10194
Oblicz ratę kredytu

372 000 zł

Szczegóły oferty

Symbol oferty EXP-MS-10194
Powierzchnia 62,05 m²
Powierzchnia użytkowa [m2] 62,05 m²
Liczba pokoi 3
Rodzaj budynku blok
Technologia budowlana płyta
Piętro 4
Stan lokalu do generalnego remontu
Mies. czynsz admin. 778 PLN
Okna częściowo wymienione
Balkon jest
Liczba balkonów 1
Rok budowy 1985
Gaz jest
Woda tak - miejska
Dojazd asfalt
Otoczenie zabudowa wielorodzinna
Ogrzewanie miejskie
Usytuowanie dwustronne
vir_oferta_odlegloscplaza_linia tak
Kazimierz Lerka AL-WI GLOB

Kazimierz Lerka AL-WI GLOB

Manager
Nr licencji: 22047

Napisz wiadomość 11 Ofert

Opis nieruchomości

Idealna propozycja dla rodziny. Mieszkanie z potencjałem, do własnej aranżacji.

Przestronne, słoneczne, rozkładowe 3 pokojowe mieszkanie na Radogoszczu Wschodzie. Świetna lokalizacja.

Mieszkanie dobrze skomunikowane - w pobliżu dobrze rozwinięta infrastruktura handlowo-usługowa, przystanki komunikacji miejskiej - autobusowe i tramwajowe, blisko autostrady A1 i A2. Niedaleko tereny zielone - Arturówek. 

W pełni rozkładowe mieszkanie o powierzchni 62,05 mkw składające się z trzech pokoi, kuchni, łazienki, wc i przedpokoju oraz balkonu, położone na 4 piętrze w bloku z lat 80-tych. Właściciel lokalu ma możliwość korzystania z piwnicy. Mieszkanie w stanie technicznym do generalnego remontu. Okna drewniane, jedno okno PCV. Mieszkanie nieumeblowane. W przedpokoju miejsce na dużą szafę lub garderobę. 

Rozkład i powierzchnia mieszkania oraz lokalizacja w pobliżu terenów zielonych, blisko sklepów, przedszkoli, szkoł i innych usług, z dobrą komunikacją MPK sprawiają, że jest to idealne mieszkanie dla rodziny.

Opłaty dla spółdzielni ok. 778 zł 

Mieszkanie wolne, do sprzedaży "od zaraz"

• wskaźnik rocznego zapotrzebowania na energię użytkową - EU=119,49 kWh/(m2*rok)
• wskaźnik rocznego zapotrzebowania na energię końcową - EK=159,42 kWh/(m2*rok)
• wskaźnik rocznego zapotrzebowania na nieodnawialną energię pierwotną - EP=128,90 kWh/(m2*rok)
• udział odnawialnych źródeł energii w rocznym zapotrzebowaniu na energię końcową - UOZE=0,00%
• jednostkowa wielkość emisji CO2 - ECO2=0,0540 t CO2/(m2*rok)

ZAPRASZAMY DO OBEJRZENIA!!!


Uwaga dane o ofercie mogą odbiegać od stanu faktycznego i prawnego - biuro nie odpowiada za niezgodność danych z rzeczywistością. Oferta może być w danym momencie nieaktualna. Prosimy o telefon

Lokalizacja nieruchomości

Kalkulatory

Kalkulator kredytowy

Wysokość raty

PLN
%

Podobne oferty

Oferta specjalna

Mieszkanie na sprzedaż

Łódź, Bałuty

2 Pokoje 39 m2 9 256,91 zł/m2
Oferta specjalna

Mieszkanie na sprzedaż

Łódź, Bałuty

2 Pokoje 45 m2 6 710,05 zł/m2

Mieszkanie na sprzedaż

Łódź, Bałuty

3 Pokoje 58 m2 6 672,41 zł/m2

Mieszkanie na sprzedaż

Łódź, Bałuty

1 Pokoje 40 m2 8 225,00 zł/m2

Manager

Proszę wprowadzić poprawne imię i nazwisko
Proszę wprowadzić poprawny numer telefonu
Proszę wprowadzić poprawny adres e-mail
Proszę zaznaczyć wymagane zgody
Rozwiąż równanie:
15 8
Niepoprawny wynik