Mieszkanie na sprzedaż

Łódź, Bałuty, ok. MANUFAKTURY

3 pokoje
57.82 m²
7 990,31 zł/m2
5 piętro
PRO-MS-10757
Oblicz ratę kredytu

462 000 zł

Bez prowizji

Szczegóły oferty

Symbol oferty PRO-MS-10757
Powierzchnia 57,82 m²
Powierzchnia użytkowa [m2] 57,82 m²
Powierzchnia balkonów/tarasów 7,20 m²
Liczba pokoi 3
Liczba sypialni 2
Rodzaj budynku apartamentowiec
Technologia budowlana mieszana
Standard
Opłaty w czynszu administracja, Części wspólne, fundusz remontowy, ogrzewanie, Winda, woda, woda ciepła, wywóz śmieci, zaliczka na fundusz remontowy
Opłaty wg liczników prąd
Piętro 5
Liczba pięter w budynku 6
Garaż miejsce garażowe
Stan lokalu deweloperski
Okna PCV 3 szyby, ciepły montaż
Instalacje nowe
Balkon duży
Liczba balkonów 1
Rok budowy 2024
Widok na osiedle
Woda tak - miejska
Dojazd asfalt
Otoczenie osiedle
Ogrzewanie miejskie
Odległość do komunikacji publicznej [m] 200 m
Odl. do szkoły [m] 180 m
Odl. do przedszkola [m] 350 m
Winda tak
Liczba wind 1
Usytuowanie narożne
Przystosowania dla niepełnosprawnych tak
Klucze tak
Kazimierz Lerka AL-WI GLOB

Kazimierz Lerka AL-WI GLOB

Manager
Nr licencji: 22047

Napisz wiadomość 15 Ofert

Opis nieruchomości

OKAZJA TYLKO - 7990 zł/m² nowego mieszkania 

- CENA MIESZKANIA                          -  462 000 zł 
- CENA prawa do MIEJSCA W GARAŻU - 42 000 zł 

zakup tylko łącznie 504 000 zł 

 

KUPUJĄCY BEZ PROWIZJI !!!

POLECAM 3-pokojowy APARTAMENT w stanie deweloperskim w nowej inwestycji na Bałutach, spokojna cicha lokalizacja, BUDYNEK WYBUDOWANY i ODEBRANY !!! MIESZKANIE Z KSIĘGĄ WIECZYSTĄ - BEZPIECZNY ZAKUP, ładny rozkład, duże miejsce parkingowe w garażu pod budynkiem, wysokie piętro - ładny widok

Dla apartamentu przygotowano gotowy projekt architektoniczny wykończenia wg załączonych wizualizacji na zdjęciach !!!


UWAGA: Nabywca mieszkania ma zagwarantowany 10% upust na zakupy w marketach LEROY MERLIN w Łodzi - więcej informacji na stronie biura - w zakładce Partnerzy.

- LOKALIZACJA:
Bałuty, ok. ul. Zgierskiej i ul. Zachodniej, w bliskim sąsiedztwie budynku mieści się CENTRUM HANDLOWE MANUFAKTURA, dobrze rozwinięta infrastruktura handlowo-usługowa oraz społeczna m.in. szpital wielospecjalistyczny, okulista, stomatolog, apteka, biblioteka miejska, bank, Rynek Bałucki, punkty gastronomiczne, blisko park, plac zabaw, a także liczne sklepy oraz placówki oświatowe. Położenie budynku umożliwia dogodny dojazd do centrum miasta zarówno własnym środkiem transportu jak i komunikacją miejską (w odległości ok. 200 metrów od budynku znajduje się przystanek tramwajowy). Jedno z największych centrów handlowo-usługowo-rozrywkowych w Łodzi – Manufaktura, mieści się w odległości ok. 1.3 km (niecałe 10 minut tramwajem, 5 minut samochodem), szkoła w odległości 180 m, przedszkole w odległości ok. 350 m.

- WOLNE: od zaraz, prezentacja po kontakcie z pośrednikiem, klucze w biurze,
- POZOSTAŁE OPŁATY: czynsz do wspólnoty mieszkaniowej 765,98 zł,  w tym fundusz remontowy, opłata eksploatacyjna, centralne ogrzewanie, opłata za garaż - bez zaliczek na wodę i opłaty za wywóz śmieci.

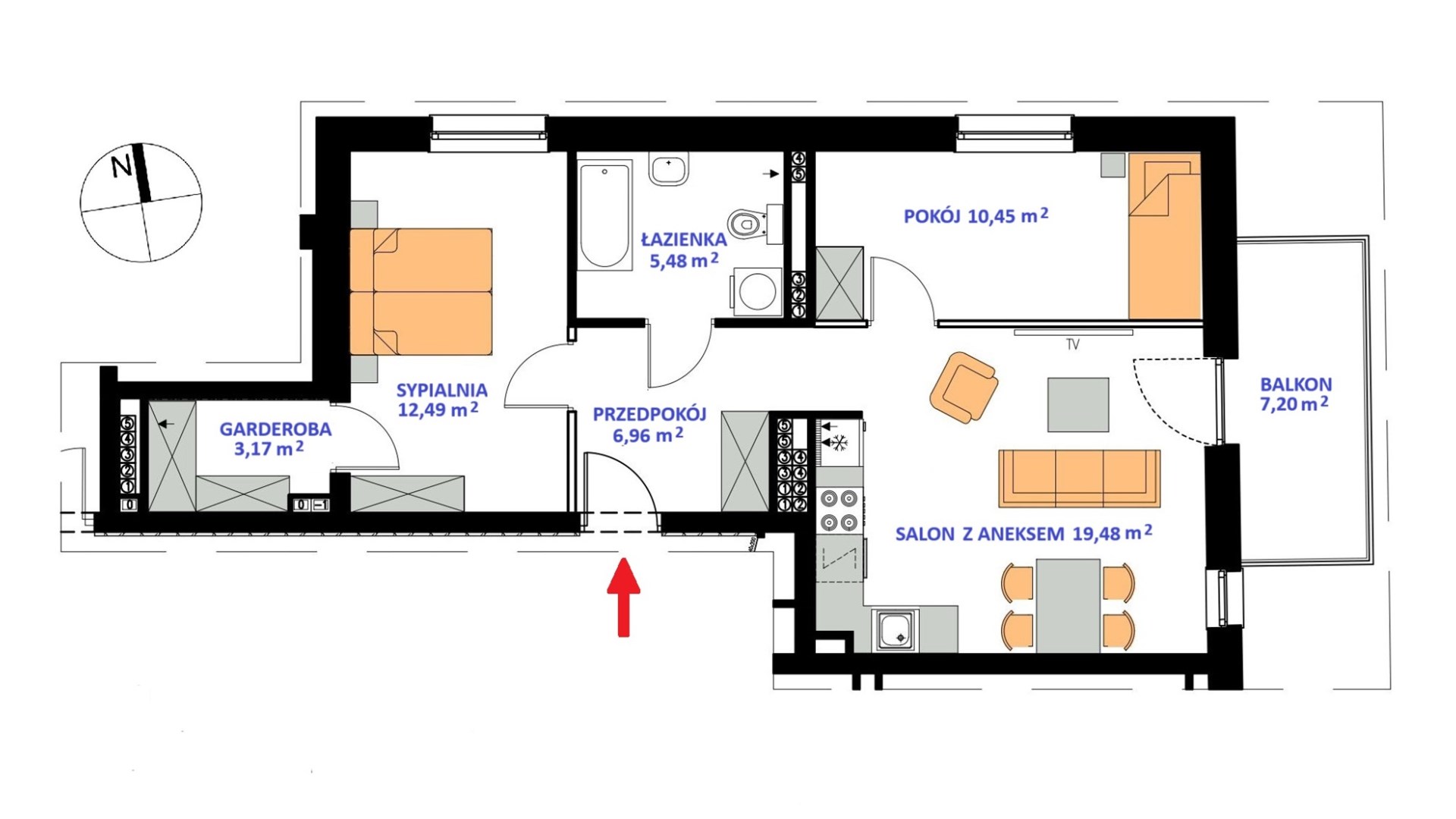
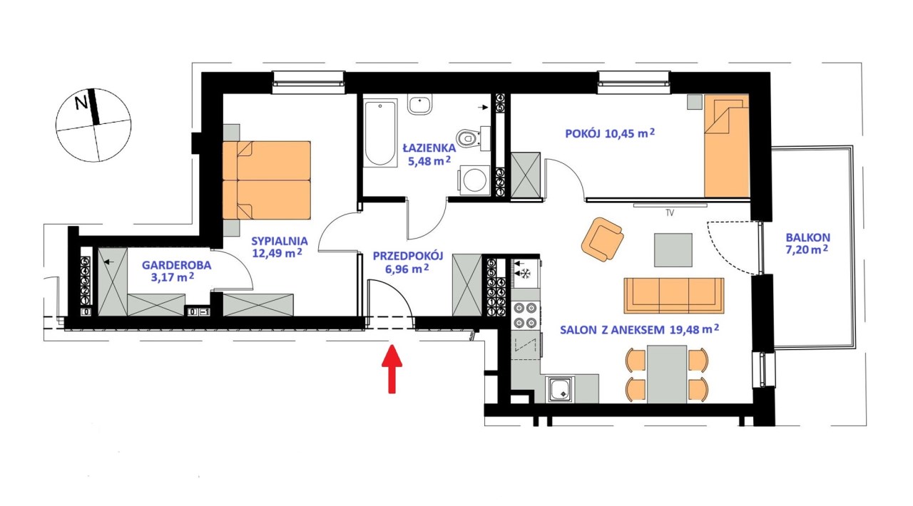
- OPIS POMIESZCZEŃ - patrz rzut mieszkania:
- PRZEDPOKÓJ: 6,96 m²,
- SALON Z ANEKSEM KUCHENNYM: 19,48 m², wyjście na duży balkon,
- SYPIALNIA: 12,49 m², z garderobą 3,17 m²,
- POKÓJ/GABINET/DRUGA SYPIALNIA: 10,45 m²,
- ŁAZIENKA Z WC: 5,48 m²,

- BUDYNEK: nowy blok z windą, oddany do użytkowania w 2024 r. z 30 lokalami mieszkalnymi i garażem pod budynkiem i w kondygnacji parteru, z bramą wjazdową na pilota,
- MATERIAŁ BUDOWLANY i WYKOŃCZENIE - podstawowe informacje:
- ŚCIANY ZEWNĘTRZNE: bloczki silikatowe gr. 24 cm, ocieplone styropianem,
- ŚCIANY WEWNĘTRZNE: bloczki Ytong gr. 8-10 cm, wykończone tynkiem gipsowym (w łazience ściany surowe nieotynkowane), ściany oddzielające mieszkania bloczki silikatowe  gr. 24 cm wykończone tynkiem gipsowym,
- STOLARKA OKIENNA: okna PCV wyposażone w nawiewniki wentylacyjne oraz rozszczelnienia, w kolorze białym,
- PODŁOŻA POD POSADZKI: podkład betonowy zatarty na gładko izolowany styropianem podłogowym akustycznym,
- BALKON: papa na lepiku, poręcze, balustrady stalowe malowane proszkowo,
- INSTALACJA ELEKTRYCZNA: założone gniazda, domofon,

- ROZKŁAD: pełen rozkład,
- BALKON: duży balkon o powierzchni 7,2 m² od strony wschodniej,
- OKNA - PCV, 3-szybowe współczynnik przenikania ciepła 0,9,
- WYSTAWA OKIENNA: płn - sypialnia i pokój, wsch - salon,
- MEDIA / OPOMIAROWANIE: wszystkie media miejskie opomiarowane, łącznie z ogrzewaniem,

- GARAŻ/PARKING: duże miejsce parkingowe w garażu wielostanowiskowym w kondygnacji -1 o wymiarach 3,8x5,75m usytuowane blisko do klatki wejściowej, brama wjazdowa na pilota, wjazd windą z garażu na górę,

- KOMÓRKA LOKATORSKA:
brak, ALE ISTNIEJE MOŻLIWOŚĆ DOKUPIENIA !

- UWAGA ! 
    Oferty prezentowane na naszych stronach nie stanowią oferty w rozumieniu Kodeksu Cywilnego, a są jedynie zaproszeniem do rokowań. Podane dane mają charakter wyłącznie informacyjny i mogą odbiegać od stanu faktycznego. Opis obiektu został sporządzony na podstawie informacji przekazanych przez Oferującego. Oferta może być już nieaktualna. Prosimy o telefon.

Lokalizacja nieruchomości

Kalkulatory

Kalkulator kredytowy

Wysokość raty

PLN
%

Podobne oferty

Oferta specjalna

Mieszkanie na sprzedaż

Łódź, Bałuty

2 Pokoje 39 m2 9 256,91 zł/m2
Oferta specjalna

Mieszkanie na sprzedaż

Łódź, Bałuty

3 Pokoje 57 m2 6 438,60 zł/m2

Mieszkanie na sprzedaż

Łódź, Bałuty

2 Pokoje 50 m2 7 477,57 zł/m2

Mieszkanie na sprzedaż

Łódź, Bałuty

2 Pokoje 58 m2 6 927,08 zł/m2

Manager

Proszę wprowadzić poprawne imię i nazwisko
Proszę wprowadzić poprawny numer telefonu
Proszę wprowadzić poprawny adres e-mail
Proszę zaznaczyć wymagane zgody
Rozwiąż równanie:
30 2
Niepoprawny wynik