Mieszkanie na sprzedaż

Łódź, Śródmieście, Tymienieckiego

3 pokoje
138.00 m²
6 521,74 zł/m2
3 piętro
PRO-MS-10829
Oblicz ratę kredytu

900 000 zł

Nowa oferta

Szczegóły oferty

Symbol oferty PRO-MS-10829
Powierzchnia 138,00 m²
Liczba pokoi 3
Liczba sypialni 2
Rodzaj budynku apartamentowiec
Technologia budowlana cegła
Standard
Opłaty w czynszu administracja, CO, Części wspólne, fundusz remontowy, ogrzewanie, Winda, woda, woda ciepła, wywóz śmieci
Opłaty wg liczników prąd
Piętro 3
Liczba pięter w budynku 4
Garaż garaż
Piwnica [m2] 2,00 m²
Stan lokalu bardzo dobry
Mies. czynsz admin. 1 050 PLN
Okna witryna
Instalacje wymienione
Balkon brak
Rok budowy 2007
Widok na inne budynki
Woda ciepła - miejska
Dojazd asfalt
Otoczenie zabudowa mieszana
Ogrzewanie C.O. miejskie
Winda tak
Liczba wind 4
Usytuowanie jednostronne
Drzwi antywłamaniowe tak
Przystosowania dla niepełnosprawnych tak
Klucze tak
Kazimierz Lerka AL-WI GLOB

Kazimierz Lerka AL-WI GLOB

Manager
Nr licencji: 22047

Napisz wiadomość 15 Ofert

Opis nieruchomości

Komfortowy, kompletnie umeblowany i wyposażony, 2-poziomowy APARTAMENT typu loft w unikalnej inwestycji  LOFTY "U Scheiblera", ogrodzony, strzeżony teren, miejsce parkingowe w GARAŻU wielostanowiskowym pod budynkiem z dużą KOMÓRKĄ lokatorską, portiernia przy wejściu.
 

SUPER ATRAKCYJNA CENA TYLKO 900 TYŚ. ZA CAŁOŚĆ !!!


UMOWA NA WYŁĄCZNOŚĆ - LOKAL PREZENTUJE POŚREDNIK !!!


- POMOŻEMY CI UZYSKAĆ KREDYT!
- ZORGANIZUJEMY OBSŁUGĘ NOTARIALNĄ !

Zapraszamy do wirtualnej wizyty (zdjęcia kamerą 360º umożliwiają obejrzenie pomieszczeń od wewnątrz) - oferta nr  PRO-MS-10653

UWAGA: Nabywca mieszkania ma zagwarantowany 10% upust na zakupy w marketach LEROY MERLIN w Łodzi - więcej informacji na stronie biura - w zakładce Partnerzy

- WOLNE: do uzgodnienia, obecnie jest najemca

- OPŁATY EKSPLOATACYJNE:
opłata do wspólnoty 1781,57 zł, (w tym min. ogrzewanie, zaliczka na ciepłą i zimną wodę, wywóz śmieci, ochronę, utrzymanie części wspólnych, opłata za miejsce parkingowe i komórkę lokatorską) + prąd wg zużycia + ewentualnie telewizja kablowa/satelitarna + internet - w budynku Toya,

 - MEDIA / OPOMIAROWANIE:
wszystkie media miejskie, wszystkie media opomiarowane, także ogrzewanie - pomierniki na kaloryferach,

- OPIS POMIESZCZEŃ (umeblowanie / wyposażenie):
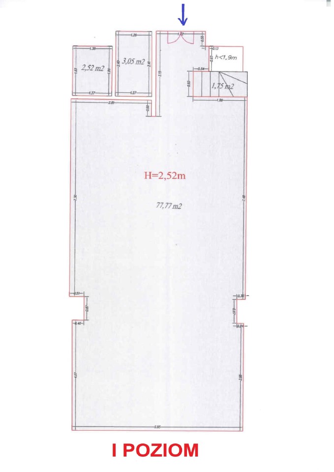
I poziom:
- SALON Z ANEKSEM KUCHENNYM:
olbrzymi salon, który w najwyższym punkcie ma 6m wysokości, duże okna typu witryna bardzo dobrze doświetlające całą powierzchnię (dodatkowo okna dachowe), na podłodze parkiet, w salonie skórzany komplet wypoczynkowy (narożnik + ława skórzana), szezląg, szafka pod telewizory, telewizor 42", zestaw kina domowego,
- ANEKS KUCHENNY + JADALNIA:
całość połączona z salonem, w jadalni stół z blatem szklanym + 4 krzesła, kuchnia z wyspą (indukcyjna, 4-palnikowa płyta grzewcza), kompletnie umeblowana i wyposażona, lodówka z zamrażarką, zmywarka, wbudowana kuchenka mikrofalowa i piekarnik, komplet garnków sztućców itp., duża szafa z 5 drzwiami przesuwnymi, odkurzacz, deska do prasowania, żelazko, zestaw do sprzątania (mop itp.,)
- HOL WEJŚCIOWY:
schody na górę wyłożone płytami aluminiowymi,
- WC:
oryginalne wykończenie, płyty aluminiowe na podłodze i na ścianach, umywalka, sedes typu Geberit,

II poziom:
2 sypialnie na antresoli, otwarte na ścianę z oknami, oddzielone barierkami, w głównej okna dachowe,
- SYPIALNIA I:
na podłodze wykładzina, szafa typu Komandor z drzwiami przesuwnymi, okna dachowe od strony wschodniej (zainstalowane rolety przeciwsłoneczne), łóżko podwójne z 2 toaletkami, szezląg, 2 fotele, ława,
- SYPIALNIA II/ GABINET:
na podłodze wykładzina, kanapa rozkładana, biurko, krzesło na kółkach,  
- ŁAZIENKA Z WC:
umywalka z lustrem z oświetleniem, sedes, prysznic z deszczownią, pralka,

- STANDARD WYKOŃCZEŃ:
na podłodze w salonie parkiet, w holu wejściowym gres szkliwiony, w sypialniach na antresoli wykładziny, terakota w łazience na górze, w łazience na dołu oryginalne wykończenie z blachy aluminiowej, na ścianach gładzie gipsowe, okna dachowe drewniane, całość bardzo gustownie wykończona.
W CENIE KOMPLETNE UMEBLOWANIE I WYPOSAŻENIE !!!

- BUDYNEK: odrestaurowany i przerobiony na mieszkania budynek pofabryczny z XIX w. dawnej przędzalni Karola Scheiblera, całość oryginalnie przerobiona na luksusowy kompleks mieszkalny z windami i parkingiem wielostanowiskowym pod budynkiem, na terenie kompleksu 2 sklepy spożywcze - delikatesy Fabryczna i Żabka, 2 restauracje, 2 kawiarnie, pub, w budynku fryzjer, kosmetyczka, bardzo dobrze wyposażony gabinet stomatologiczny (też implanty),


- ROZKŁAD:
tak,
- USYTUOWANIE W BUDYNKU:
środkowe,
- BALKON / LOGGIA:
brak,
- OKNA -
oryginalne duże okna typu witryna / DRZWI: zewnętrzne antywłamaniowe,
- WYSTAWA OKIENNA:
płd, okna dachowe w sypialniach od strony wschodniej i zachodniej,  
- BEZPIECZEŃSTWO:
cały teren jest chroniony - portiernia przy głównym wejściu do budynku, 12 obchodów na dobę części wspólnych i garażu wielostanowiskowego, domofony przy głównych drzwiach wejściowych do budynku, wszystkie pozostałe drzwi wejściowe do budynku zamknięte od zewnątrz - możliwe wyjście z wewnątrz,

- GARAŻ:
miejsce  w garażu wielostanowiskowym pod budynkiem, brama wjazdowa na pilota,
- KOMÓRKA LOKATORSKA:
tak, pomieszczenie o pow. 10,52m w garażu wielostanowiskowym, za miejscem parkingowym przynależnym do mieszkania,

- UWAGA: miejsce parkingowe i komórka lokatorska uregulowane w osobnej księdze wieczystej - można sprzedać oddzielnie !!!

- UWAGA!  
Oferty prezentowane na naszych stronach nie stanowią oferty w rozumieniu Kodeksu Cywilnego, a są jedynie zaproszeniem do rokowań. Podane dane mają charakter wyłącznie informacyjny i mogą odbiegać od stanu faktycznego. Opis obiektu został sporządzony na podstawie informacji przekazanych przez Oferującego. Oferta może być już nieaktualna. Prosimy o telefon.

Wirtualny spacer

Lokalizacja nieruchomości

Kalkulatory

Kalkulator kredytowy

Wysokość raty

PLN
%

Podobne oferty

Mieszkanie na sprzedaż

Łódź, Śródmieście

3 Pokoje 136 m2 7 345,59 zł/m2

Mieszkanie na sprzedaż

Łódź, Śródmieście

3 Pokoje 72 m2 10 000,00 zł/m2
Wirtualny spacer

Mieszkanie na sprzedaż

Łódź, Śródmieście

3 Pokoje 138 m2 6 521,74 zł/m2
Wirtualny spacer
Nowa oferta

Mieszkanie na sprzedaż

Łódź, Śródmieście

4 Pokoje 148 m2 7 094,59 zł/m2
Nowa oferta

Manager

Proszę wprowadzić poprawne imię i nazwisko
Proszę wprowadzić poprawny numer telefonu
Proszę wprowadzić poprawny adres e-mail
Proszę zaznaczyć wymagane zgody
Rozwiąż równanie:
13 5
Niepoprawny wynik